Hafele 553.00.161 Power Cord, for Sensomatic Drawer Opener Senso power cord w/ Plug, 6', model 69760-04
Product Information
Description
Manufacturer: Hafele
Item: 553.00.161
Product Title: Power Cord, for Sensomatic Drawer Opener, Senso power cord w/ Plug, 6', model 69760-04
Category: Power Cord, for Sensomatic Drawer Opener, Senso power cord w/ Plug, 6', model 69760-04
Item Details …
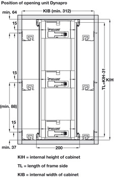
- The electro mechanical opening system is triggered by a light touch anywhere on the surface of the front which causes drawers to glide evenly and smoothly
- Available for use with Dynapro dynamic runners or Nova Pro drawer systems
- Please see catalogue for additional installation information
- System parts:
- 1. Opening unit, for eithe Dynapro or Nova Pro drawer systems, grey plastic
- 2. Frame sides, aluminium 653 mm, including cable, to suit 720 mm high cabinet
- 3. Frame set, consists of: 1x set of 6 fixing brackets
- 4. Power supply, input 100-240V, 50-60 HZ, output 24V DC, max. 120W, black plastic
- 5. Mains cable, 2000 mm lead length, black
- 6. Connecting cable, 1600 mm length, black
- 7. Door buffer, spring loaded, Diameter: 5 mm, with 3 mm front gap, grey plastic with spring mechanism
- Connecting cable, allows up to three opening units to be opened simultaneously
- Material : Plastic
- Color/finish : Black
- Installation reference : The electro mechanical opening system is triggered by a light touch anywhere on the surface of the front which causes drawers to glide evenly and smoothlyAvailable for use with Dynapro dynamic runners or Nova Pro drawer systemsPlease see catalogue for additional installation informationSystem parts:1. Opening unit, for eithe Dynapro or Nova Pro drawer systems, grey plastic2. Frame sides, aluminium 653 mm, including cable, to suit 720 mm high cabinet3. Frame set, consists of: 1x set of 6 fixing brackets4. Power supply, input 100-240V, 50-60 HZ, output 24V DC, max. 120W, black plastic5. Mains cable, 2000 mm lead length, black6. Connecting cable, 1600 mm length, black7. Door buffer, spring loaded, Diameter: 5 mm, with 3 mm front gap, grey plastic with spring mechanismConnecting cable, allows up to three opening units to be opened simultaneouslyData Sheet
Product Resources
Specifications
For detailed PDF specifications, click:
Hafele Catalog Page: selection_8.41-8.42.pdf
Please contact us for more information about this productBrand PDF Catalogs
Click on a Category to open a PDF catalog:
Sliding and Folding Catalog
Fineline Brochure
Free Flap Fittings Brochure
The Complete Architectural Hardware Catalog
Dialock In Hotels Catalog
Dialock System Catalog
IXConnect Invisible Heroes
One Room One Face Catalog
Architectural Hardware: American Standard Catalog
Closet Catalog
Decorative Wood Catalog
Cornerstone Catalog
Decorative Hardware Catalog
Kitchen Solutions Catalog
Loox5 Lighting Catalog
Furniture Cabinetry Hardware Catalog
Designing Accessibility HEWI Catalog
The Complete CabinetRequired Products & Optional Accessories
Optional Accessories:- Frame Set, for Top Fixing, for Sensomatic Electro Mechanical Openint System
Quick Metric Conversions: 25mm = 1 inch (approx), 2.5cm = 1 inch (approx), 96mm = 3.75 inches









