Product Information
Description
Manufacturer: Hafele
Item: 405.02.411
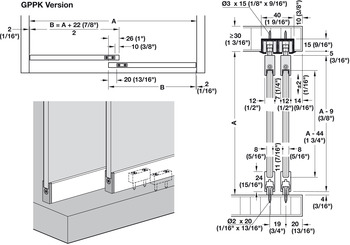
Product Title: Sliding Door Hardware, Hawa Clipo 36 GPPK IF, set, For 1 glass door; max door weight: 79 lbs (36 kg), GPPK
Category: Sliding Door Hardware, HAWA Clipo 36 GPK/GPPK IF, set, For 1 glass door; max door weight: 79 lbs (36 kg)
Item Details …
- Running gear includes four plastic rollers
- Optional soft close mechanism can be inconspicuously integrated into the track so its is not visible and is protected from damage
- No guide rails in the bottom of the cabinet
- GPK Version: Glass fixing profile is on the top of the door, floor guide located at the bottom
- GPPK Version: Glass fixing profile is on the top and bottom of the door, floor guide is concealed within the profile
- Number of doors : 1.00
- Soft closing mechanism : with clip-in door stopper
- For glass thickness : 6–8 mm
- For door width : ?1,000 mm
- For door weight : ?36 kg
- Cabinet version : with sliding doors without glass drilling
- Set : Set without tracks
- Area of application : For 1 doors
- For door height : ?2,000 mm
- Door stopper : Top clip-in door stopper, for sliding into single or double top running track
- Material/finish : Running gear: Zinc alloySuspension: Zinc alloyGuide: Zinc alloyGuide: PlasticRollers: PlasticAxis: Steel
- Running position : Top
- Number of rollers : 4.00
- Running gear guided by : Friction bearing
- Adjustment facility : Height adjustment: ±2 mm
- Door processing : Without glass preparation
- Running position : Top
- Type of opening : linear
- Number of doors per system max. : 1
- Order reference
- Please order running tracks, guide tracks and glass fixing profiles (GPK: top, GPPK: top and bottom) separately.
- Soft closing at one side is possible from a centre distance of min. 260 mm, both sides from 460 mm. Please order soft closing mechanism set separately.
- Supplied with:
- 2 Running gears
- 2 track stoppers
- 8 glass centering pieces
- 1 guide
- 3 cover capsData Sheet
Product Resources
Specifications
Brand PDF Catalogs
Click on a Category to open a PDF catalog:
Sliding and Folding Catalog
Fineline Brochure
Free Flap Fittings Brochure
The Complete Architectural Hardware Catalog
Dialock In Hotels Catalog
Dialock System Catalog
IXConnect Invisible Heroes
One Room One Face Catalog
Architectural Hardware: American Standard Catalog
Closet Catalog
Decorative Wood Catalog
Cornerstone Catalog
Decorative Hardware Catalog
Kitchen Solutions Catalog
Loox5 Lighting Catalog
Furniture Cabinetry Hardware Catalog
Designing Accessibility HEWI Catalog
The Complete CabinetRequired Products & Optional Accessories
Note: Add the current product in cart before ordering required products below ...
Required Products:
Single Upper Track, Pre-Drilled, for Screw Fixing (choose one):for Hawa Clipo, 2.5 m
for Hawa Clipo, 3.5 m405.00.622
405.00.623Click to order
Click to order
Single Running Track, Pre-Drilled, for Screw Fixing (choose one):for Hawa Clipo, Aluminum, silver colored anodized, length 2.5 m 405.00.632 Click to order
Double Running Track, Perforated (choose one):for Hawa Clipo, 2.5 m
for Hawa Clipo, 3.5 m405.02.622
405.02.623Click to order
Click to order
Glass Fixing Profile, Hawa Clipo 36 GPK/GPPK Inslide (choose one):for Hawa Clipo, 2.5 m
for Hawa Clipo, 3.5 m405.03.202
405.03.203Click to order
Click to order
Optional Accessories:- Soft Close Mechanism, Optional
- Service Port for Upper Track, Plastic
Quick Metric Conversions: 25mm = 1 inch (approx), 2.5cm = 1 inch (approx), 96mm = 3.75 inches









