Product Information
Description
Manufacturer: Hafele
Item: 940.81.008
Product Title: Sliding Door Hardware, Hawa Telescopic 80/3 (for 3 doors), set, Top Hung System, for 3-leaf sliding doors
Category: Sliding Door Hardware, Hawa Telescopic 80/3 (for 3 doors), set, Top Hung System, for 3-leaf sliding doors
Item Details …
- Outstanding durability
- Rattle-free bottom guide
- Smooth quiet operation
- Parallel opening and closing
- Special two-way suspension
- Vertically and laterally adjustable
- Door stop with adjustable retention spring
- Model series : Junior
- Model : 80 Z Telescopic 3
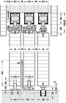
- For door width (inches) : 19 11/16" - 47 1/4"
- Load bearing capacity : 176 lbs. per sliding door
- For door thickness min. : 1 1/4"
- For door thickness max. : 1 7/8"
- Area of application : For 3 bypassing sliding wood doors
- For door material : wood
- Number of doors : 3.00
- For door weight : ?80 kg
- For door width : 500?–?1,200 mm
- For door height : ?4,000 mm
- For door thickness : 32?–?47 mm
- Further adjustment facility : Door height adjustable
- Controller installation options : Ceiling installation
- Order reference
- Please order 3 Hawa Junior 80 Z sets separately. Please order running tracks separately.
- Supplied with:
- 3 followers (1 narrow, 2 wide)
- 4 deflection rollers (2 short, 2 long)
- 1 wall/ceiling mounting set for toothed belt
- 2 toothed belts 2.7 m
- 1 carrier plate for follower
- 1 HAWA Confort 120 floor guide
- 1 guide plateData Sheet
Product Resources
Specifications
For detailed PDF specifications, click:
Hafele Sliding Door Catalog Page: selection_1.68-1.69.pdf
Hafele 940.81.008 HAWA Telescopic 80/3 Fitting Set, three panels- Hardware > Building Materials > Door Hardware
- Hardware,Hafele,500-3000
- Brand: Hafele
- Part#: 940.81.008
- Condition: new
Brand PDF Catalogs
Click on a Category to open a PDF catalog:
Sliding and Folding Catalog
Fineline Brochure
Free Flap Fittings Brochure
The Complete Architectural Hardware Catalog
Dialock In Hotels Catalog
Dialock System Catalog
IXConnect Invisible Heroes
One Room One Face Catalog
Architectural Hardware: American Standard Catalog
Closet Catalog
Decorative Wood Catalog
Cornerstone Catalog
Decorative Hardware Catalog
Kitchen Solutions Catalog
Loox5 Lighting Catalog
Furniture Cabinetry Hardware Catalog
Designing Accessibility HEWI Catalog
The Complete CabinetRequired Products & Optional Accessories
Note: Add the current product in cart before ordering required products below ...
Required Products:
Sliding Door Hardware, Hawa Junior 80/Z, set (choose one):Top Hung System, for 1 sliding door without upper track, With 1 track stopper
Top Hung System, With 2 track buffers940.80.001
940.80.015Click to order
Click to order
Upper Track, Pre-drilled (choose one):for Hawa Symmetric, Telescopic, Junior, 1.4 m (4’ 7 1/8”)
for Hawa Symmetric, Telescopic, Junior, 1.6 m (5’ 3”)
for Hawa Symmetric, Telescopic, Junior, 1.8 m (5’ 10 7/8”)
for Hawa Symmetric, Telescopic, Junior, 2 m (6’ 6 3/4”)
for Hawa Symmetric, Telescopic, Junior, 2.2 m (7’ 2 5/8”)
for Hawa Symmetric, Telescopic, Junior, 2.5 m (8’ 2 7/16”)
for Hawa Symmetric, Telescopic, Junior, 3 m (9’ 10 1/8”)
for Hawa Symmetric, Telescopic, Junior, 4 m (13’ 1 1/2”)
for Hawa Symmetric, Telescopic, Junior, 6 m (19’ 8 1/4”)940.80.140
940.80.160
940.80.180
940.80.200
940.80.220
940.80.250
940.80.300
940.80.400
940.80.600Click to order
Click to order
Click to order
Click to order
Click to order
Click to order
Click to order
Click to order
Click to order
Guide Rail, 20 x 12 (13/16" x 1/2"), Glue-in (choose one):for Hawa Junior, Symmetric, Telescopic, Ordena, (4' 3 1/8") 1.3 m 940.41.130 Click to order
Lower Guide Channel, Pre-drilled (choose one):for Hawa Telescopic, Junior, folding wall, Length: 2.5 m (8' 2 7/16")
for Hawa Telescopic, Junior, folding wall, Length: 6.0 m (19' 8 1/4")941.00.925
941.00.960Click to order
Click to order
Optional Accessories:- Bar Bolt Lock, Hawa Doorfix
- Sealing Profile, Drilled
- Floor Guide, Hawa-Confort 120, 1-piece
Quick Metric Conversions: 25mm = 1 inch (approx), 2.5cm = 1 inch (approx), 96mm = 3.75 inches











