Product Information
Description
Manufacturer: Hafele
Item: 553.00.343
Product Title: Connection Cable, for More than One Drawer, Grass Sensomatic, Connection cable, 2000 mm, model F121100291207
Category: Connection Cable, for More than One Drawer, Grass Sensomatic,
Item Details …
- The electro mechanical opening system is triggered by a light touch anywhere on the surface of the front which causes drawers to glide evenly and smoothly
- Available for use with Dynapro dynamic runners or Nova Pro drawer systems
- Please see catalogue for additional installation information
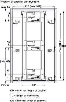
- System parts:
- 1. Opening unit, for eithe Dynapro or Nova Pro drawer systems, grey plastic
- 2. Frame sides, aluminium 653 mm, including cable, to suit 720 mm high cabinet
- 3. Frame set, consists of: 1x set of 6 fixing brackets
- 4. Power supply, input 100-240V, 50-60 HZ, output 24V DC, max. 120W, black plastic
- 5. Mains cable, 2000 mm lead length, black
- 6. Connecting cable, 1600 mm length, black
- 7. Door buffer, spring loaded, Diameter: 5 mm, with 3 mm front gap, grey plastic with spring mechanism
- Connecting cable, allows up to three opening units to be opened simultaneouslyData Sheet
Product Resources
Specifications
Brand PDF Catalogs
Click on a Category to open a PDF catalog:
Sliding and Folding Catalog
Fineline Brochure
Free Flap Fittings Brochure
The Complete Architectural Hardware Catalog
Dialock In Hotels Catalog
Dialock System Catalog
IXConnect Invisible Heroes
One Room One Face Catalog
Architectural Hardware: American Standard Catalog
Closet Catalog
Decorative Wood Catalog
Cornerstone Catalog
Decorative Hardware Catalog
Kitchen Solutions Catalog
Loox5 Lighting Catalog
Furniture Cabinetry Hardware Catalog
Designing Accessibility HEWI Catalog
The Complete CabinetRequired Products & Optional Accessories
Optional Accessories:- Frame Set, for Top Fixing, for Sensomatic Electro Mechanical Openint System
Quick Metric Conversions: 25mm = 1 inch (approx), 2.5cm = 1 inch (approx), 96mm = 3.75 inches








